Contact the agent if you'd like further information.
Enquire with Agent
Offices for Lease in Kingston
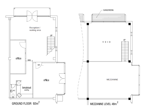
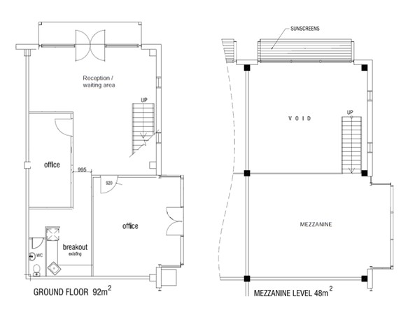
Small, In Demand Unit in Kingston Warehouse
- Building: 140m²
Next Steps:
Enquire with agentThe Kingston Warehouse is centrally located off Canberra Avenue & Wentworth Avenue and minutes from Kingston and Manuka retail precincts. The building also offers a cafe/restaurant, a gymnasium and several high quality tenants giving any potential tenant the opportunity to positively brand themselves through this exclusive location.
This well positioned corner unit of 140 m² over the ground floor and a mezzanine level is sure to impress. The impressive existing fit-out comprises two meeting rooms, a office, a functional kitchen/ break out area & open plan workspace. There are three on site car parks allocated to the unit available at an additional expense.
Building:
140m²
Next Steps:
Enquire with agentShare:
Contact
Agents
- Loading...
